Distribution of EYE Sensors in the Buildings

Grierson House First Floor-Indoor EYES Sensors

Location of indoor EYES sensors installed in the First Floor of the Grierson House building.

Grierson House Ground Floor-Indoor EYES Sensors

Location of indoor EYES sensors installed in the Ground Floor of the Grierson House building.

Heaston House Second Floor-Indoor EYES Sensors

Location of indoor EYES sensors installed in the Second Floor of the Heaston House building.

Heaston House First Floor-Indoor EYES Sensors

Location of indoor EYES sensors installed in the First Floor of the Heaston House building.

Heaston House Ground Floor-Indoor EYES Sensors

Location of indoor EYES sensors installed in the Ground Floor of the Heaston House building.

Easterbrook Main Hall Building

Location of indoor EYES sensors installed in the Easterbrook Main Hall building.

Easterbrook Bristro Poolside Building

Location of indoor EYES sensors installed in the Easterbrook Bristro Poolside building.

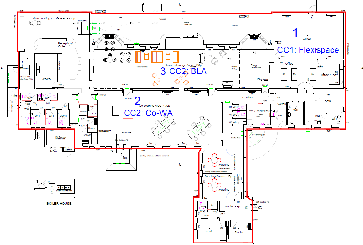
Crichton Central Building

Location of indoor EYES sensors installed in the Crichton Central building.

Church Building

Location of indoor EYES sensors installed in the Church building.

Location of Indoor EYES Sensors in the First Floor of Grierson House Building

Grierson House-First Floor.



Location of Indoor EYES Sensors in the Ground Floor of Grierson House Building

Grierson House-Ground Floor.



Location of Indoor EYES Sensors in the Second Floor of Heaston House Building

Heaston House-Second Floor.



Location of Indoor EYES Sensors in the First Floor of Heaston House Building

Heaston House-First Floor.



Location of Indoor EYES Sensors in the Ground Floor of Heaston House Building

Heaston House-Ground Floor.



Location of Indoor EYES Sensors in the Easterbrook Main Hall Building

Easterbrook Main Hall Building.



Location of Indoor EYES Sensors in the Easterbrook Bistro Poolside Building

Easterbrook Bistro Poolside Building.



Location of Indoor EYES Sensors in the Crichton Central Building

Crichton Central Building.



Location of Indoor EYES Sensors in the Church Building

Church Building.